Danh mục sản phẩm
Phụ kiện thang máy
Ý kiến chuyên gia
Cập nhật: 06-10-2023 03:33:59 | Ý kiến chuyên gia | Lượt xem: 1651
Tôi muốn lắp thang máy trong nhà để tiện đi lại, nhưng lo ngại sẽ phải thu hẹp không gian sinh hoạt, vui chơi của cả gia đình.
Tôi đang lên kế hoạch đập bỏ và xây mới hoàn toàn căn nhà phố 3 tầng, diện tích 5x20 m2. Vì bố mẹ tuổi đã cao, phòng thờ ở tầng 3, mỗi lần cúng giỗ phải đi lên xuống khá vất vả, nên tôi dự tính sẽ làm thang máy trong nhà.
Tuy nhiên, với diện tích nhà hạn chế, việc cân đối bố trí các phòng chức năng đảm bảo nhu cầu sinh hoạt của gia đình 3 thế hệ trở nên khó khăn. Nhờ chuyên gia tư vấn giúp phương án phù hợp, đi kèm những lưu ý khi lắp đặt và chi phí?
Độc giả: Hùng
Chuyên gia tư vấn:
Thang máy trong nhà sẽ giúp việc di chuyển của các thành viên trở nên dễ dàng hơn, đặc biệt phù hợp với gia đình có người cao tuổi, người bệnh hoặc gặp khó khăn khi đi lại, cần vận chuyển hàng hóa.
Về lý thuyết, nhà phố 3 tầng chưa cần lắp đặt thang máy vì sẽ tốn chi phí lắp đặt, chưa kể mất thời gian cho khâu bảo hành, bảo trì trong quá trình sử dụng. Đồng thời, các không gian chức năng phục vụ nhu cầu sinh hoạt, vui chơi cũng bị thu hẹp, do đã mất một phần diện tích đáng kể cho thang máy và thang bộ. Thông thường, nhà có quy mô từ 4,5 tầng trở lên, lắp đặt thang máy sẽ hợp lý hơn.
Với trường hợp của bạn, nếu thấy nhu cầu này là cần thiết và giúp gia đình sinh hoạt thuận tiện và thoải mái hơn, thì vẫn có thể lắp đặt. Tuy nhiên, cần chú ý cân đối thêm về kích thước, vị trí đặt thang sao cho phù hợp. Nhà 5x20m tức là bề rộng nhỏ, bề dài sâu, bố trí thang máy ở giữa nhà là phù hợp nhất. Cầu thang bộ ôm xung quanh thang máy như thiết kế hình bên dưới.

Một mẫu thang máy và thang bộ phổ biến tại nhà phố.
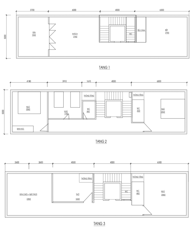
Về phân bố các phòng chức năng, bạn có thể tham khảo cách bố trí mặt bằng như sau:
Cần nhấn mạnh rằng, thiết kế nhà cần ưu tiên các yếu tố như công năng, số phòng ngủ, còn thang máy là một sự lựa chọn bắt buộc giữa "được và mất": bạn được tiện nghi nhưng phải hi sinh diện tích. Để nhường chỗ cho thang máy và thang bộ, bắt buộc diện tích các phòng phải nhỏ lại.

Mặt bằng bố trí sơ bộ các phòng trong nhà.
Thang máy phục vụ gia đình thường không cần quá to, phổ biến là loại có tải trọng 450 kg, kích thước hố thang khoảng 1,5x1,7 m, tùy theo chủng loại và thương hiệu sẽ có các thông số khác nhau.
Chi phí lắp đặt sẽ phụ thuộc nhiều yếu tố như: xuất xứ (nhập Nhật Bản, châu Âu hay liên doanh lắp ráp tại Việt Nam), thương hiệu, kích thước, vị trí lắp đặt thực tế... Giá thành dao động từ vài trăm triệu đến hơn một tỷ đồng. Sau khi lắp đặt, cần chú ý dịch vụ hỗ trợ sau bán hàng và lịch bảo hành, bảo trì của nhà cung cấp, để đảm bảo độ bền và phòng tránh rủi ro gặp phải trong quá trình sử dụng.
Nguyên tắc sử dụng thang máy thường ưu tiên tính an toàn đầu tiên, vì rủi ro khi gặp phải là rất lớn. Thứ hai là kích thước bởi nhà ống nhỏ cần tối ưu diện tích. Thứ ba, lựa chọn thang xuất xứ trong nước hay nhập khẩu tùy theo khả năng tài chính, sau cùng mới là tính thẩm mỹ.
KTS Đoàn Mạnh
>>> Có thể bạn quan tâm: Smart-Home: Thông Minh Để An Toàn
Thang Máy Tân Phát là một trong những công ty chuyên kinh doanh, lắp đặt thang máy hàng đầu tại Quảng Ninh. Tân Phát cam kết đem lại cho khách hàng những sản phẩm thang máy chất lượng nhất với nhiều ưu đãi và chính sách mua hàng hấp dẫn. Liên hệ ngay để nhận được những lời tư vấn giá trị đến từ kỹ sư nhiều kinh nghiệm:
-----------------------------------
