Danh mục sản phẩm
Phụ kiện thang máy
Ý kiến chuyên gia
Cập nhật: 20-04-2024 04:17:58 | Ý kiến chuyên gia | Lượt xem: 496
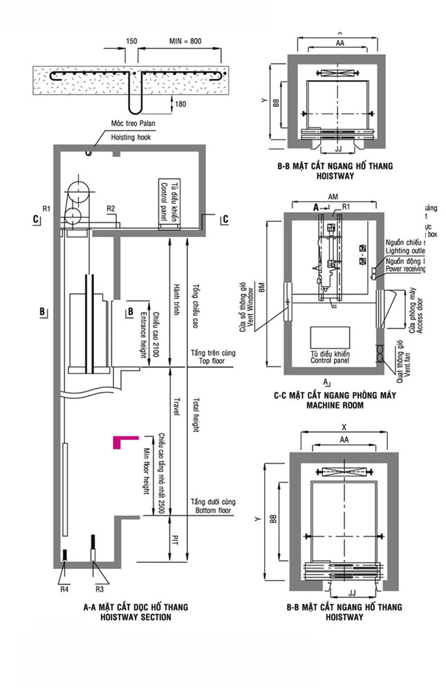
Bản vẽ thiết kế thang máy bắt buộc thể hiện rõ các thông số về kích thước cửa, kích thước phòng thang, hố thang, chiều cao OH, chiều cao PIT,…. và các kích thước chi tiết khác để người xem có thể nắm được tổng quan, đồng thời giúp cung cấp chính xác những số liệu cụ thể cho người lắp đặt thang máy thuận tiện hơn trong quá trình thi công.
Bản vẽ thang máy là bản thiết kế các đặc điểm thông số kỹ thuật bao quát toàn bộ sản phẩm. Bao gồm các phần như: phân loại thang máy, điểm dừng, tải trọng, công suất, hành trình di chuyển của thang máy.

Bản vẽ thể hiện mặt cắt dọc hố thang
Được thiết kế theo hình chiếu dọc toàn bộ đặc điểm, kết cấu, diện tích của hố thang. Trong bản vẽ sẽ thể hiện các thông tin về độ cao cửa thang máy, độ cao từng tầng, chiều cao của tầng trên cùng và chiều cao của phòng máy.
Nhìn vào bản vẽ cắt dọc, chúng ta có thể xác định được những chi tiết về vị trí lắp đặt máy kéo, cabin thang máy, đối trọng, vị trí gắn lò xo giảm chấn, dầm đỡ máy,… Những thông số về lực tác động vào hố thang cũng được vẽ đầy đủ, chi tiết bởi đây là những thông số quan trọng, giúp người thiết kế, lắp đặt thang máy tính toán chính xác kết cấu, diện tích khi xây hố thang.
Trong trường hợp hố thang được xây bằng gạch thì trong bản vẽ sẽ có thêm các thông tin về kích thước của dầm bê tông bao quanh các mặt hố và các tầng.
Bản vẽ thể hiện mặt cắt ngang hố thang
Thể hiện các chi tiết về kích thước chiều rộng cùng với chiều sâu của hố thang, kích thước cửa hố thang trước khi lắp đặt và kích thước hoàn thiện của cửa hố thang sau khi đã lắp đặt xong.
Bên cạnh đó, bản vẽ cắt ngang còn thể hiện vị trí để lắp đặt bảng nhận lệnh gọi tầng, phản hồi lệnh theo yêu cầu của người dùng thang máy.
Bản vẽ thể hiện mặt cắt ngang phòng máy
Thể hiện các chi tiết về kích thước của chiều sâu, chiều rộng phòng máy cùng với vị trí lắp đặt phòng máy, vị trí gắn móc treo Palăng, quạt thông gió, lỗ kéo máy.
Bản vẽ bao xung quanh các cửa tầng
Bản vẽ thể hiện đầy đủ, chi tiết các vị trí lắp đặt cửa thang máy, chiều rộng và chiều cao của cửa cùng với vị trí để gắn bảng chọn tầng cần lên/ xuống.
Bản vẽ hố PIT thang máy
Hố PIT thang máy nằm trong phần hố thang máy, là phần nằm âm phía dưới. Hay nói cách khác hố pit là phần đáy hố sàn tầng dưới cùng. Chiều sâu của hố pit thang máy thường phụ thuộc vào các công trình thực tế và tốc độ của thang máy.

Bản vẽ đặc tính kỹ thuật của thang máy
Đây là thông số thể hiện đặc tính cơ bản gắn liền với từng loại thang máy riêng biệt. Bản đặc tính kỹ thuật giúp người xem có thể hình dung sơ bộ về thiết bị thang máy, bao gồm:

Hố thang máy là phần quan trọng nhất trong quá trình chuẩn bị lắp đặt thang máy. Hố thang máy cần xây dựng sao cho đúng dung sai mà bản vẽ thiết kế thang máy yêu cầu. Việt Đông Hải xin khuyến nghị một số lưu ý đối với bản vẽ thiết kế hố thang cũng như mức sai số được phép của hố thang thực tế như sau:
Trong trường hợp bạn có nhu cầu tìm mua thang máy nhưng không biết chọn mua dòng thang máy nào hoặc thông số bản vẽ thiết kế thang máy như thế nào là phù hợp với công trình của mình thì lời khuyên dành cho bạn là tìm đến đơn vị thiết kế lắp đặt thang máy chuyên nghiệp để được hỗ trợ chi tiết nhất. Nhân viên kỹ thuật có chuyên môn sẽ khảo sát vị trí mà bạn cần lắp thang máy, tiến hành đo vẽ chính xác từng chi tiết rồi tư vấn bạn chọn lựa dòng thang máy phù hợp nhất với công trình của bạn.
>>> Có thể bạn quan tâm: Thang Máy Hiện Chữ E – Nguyên Nhân và Cách Khắc Phục
Thang Máy Tân Phát là một trong những công ty chuyên kinh doanh, lắp đặt thang máy hàng đầu tại Quảng Ninh. Tân Phát cam kết đem lại cho khách hàng những sản phẩm thang máy chất lượng nhất với nhiều ưu đãi và chính sách mua hàng hấp dẫn. Liên hệ ngay để nhận được những lời tư vấn giá trị đến từ kỹ sư nhiều kinh nghiệm:
-----------------------------------
